Confidential Office Renovation | Denver
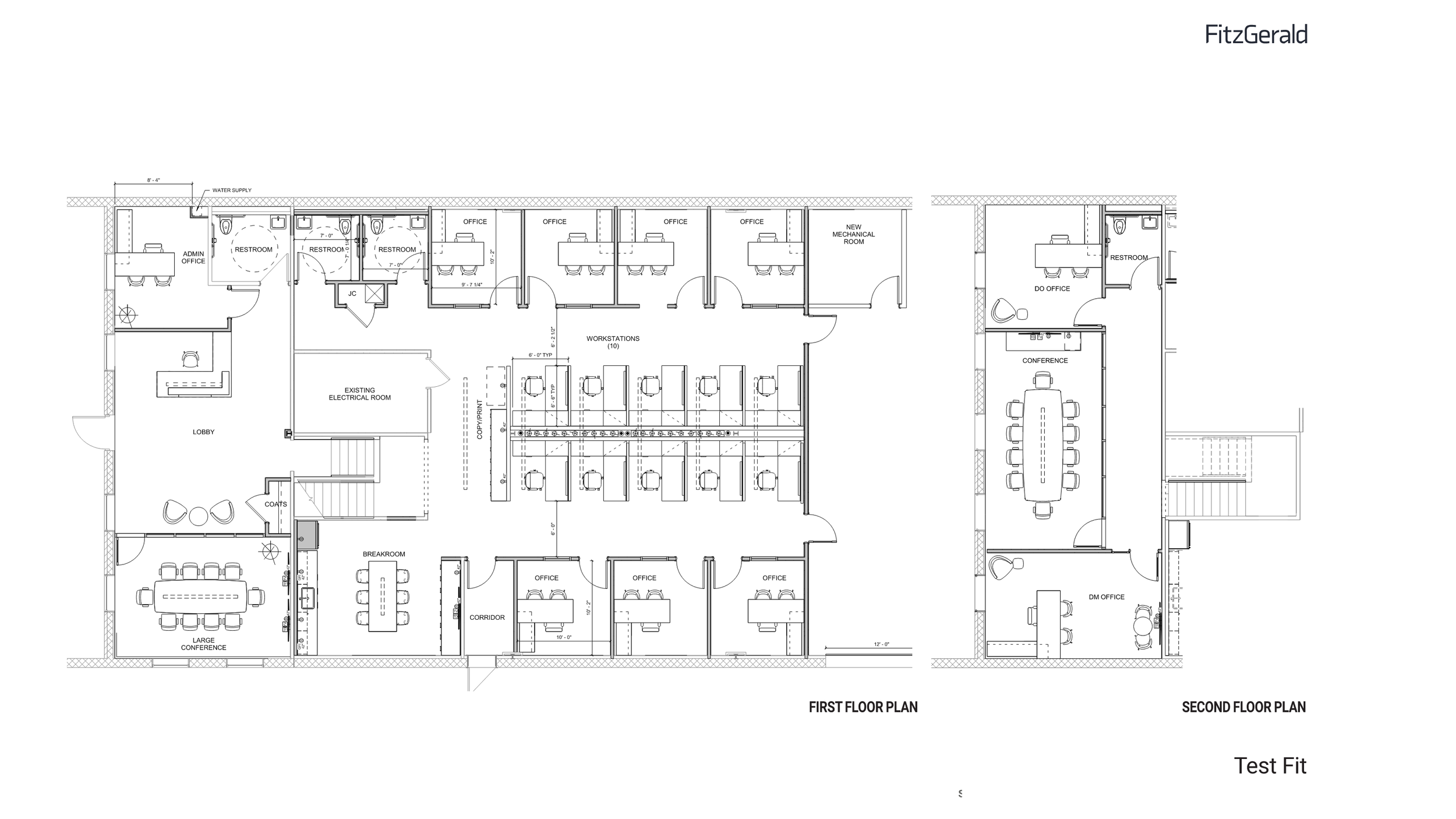
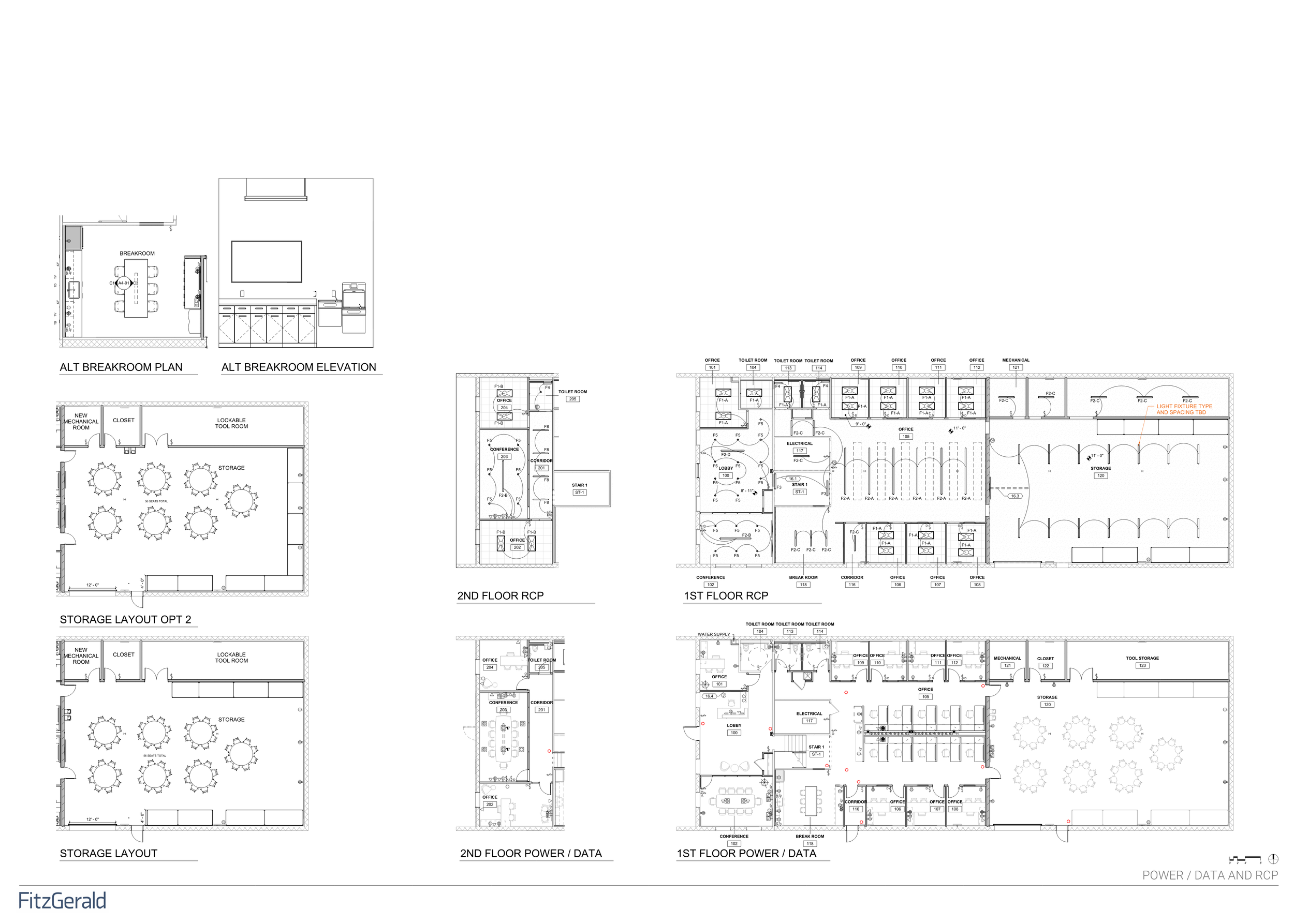
This project involved a full interior renovation, following the company’s headquarters workplace standards to ensure consistency in design, finishes, and functionality.
This project involved a full interior renovation, following the company’s headquarters workplace standards to ensure consistency in design, finishes, and functionality.